Legplan op maat
Legplan op maat
Kan beschikbaarheid voor afhalen niet laden
Productinformatie
Kenmerken van Legplan op maat
• Eenvoudige installatie: Een op maat gemaakt legplan zorgt voor een eenvoudige en efficiënte installatie van de verwarmingsfolie.
• Individuele referentie: Elke folie krijgt een eigen unieke referentie, die duidelijk in het legplan wordt vermeld voor optimale overzichtelijkheid.
• Prijs per ruimte: Het legplan voor één ruimte kost €120 exclusief BTW. Voor meerdere ruimtes of een volledig huis maken wij een offerte op maat op basis van uw informatie of aangeleverde plattegronden.
Korte specificaties
• Thermostaatlocatie: Duidelijk aangegeven in het plan voor optimale positionering.
• Volgorde van de folie: Geoptimaliseerd voor de ruimte voor maximale efficiëntie.
• Aansluitkabels: Inclusief de locatie van de aansluitkabel per folie.
Omschrijving
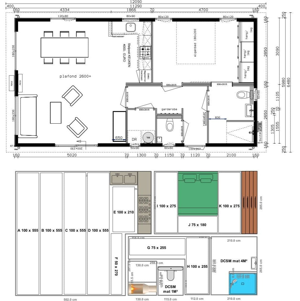
Het Legplan op maat is ontworpen om een foutloze en efficiënte installatie van verwarmingsfolie te waarborgen. Dit plan bevat nauwkeurige informatie over de plaatsing van de folie, de locatie van de thermostaat en de aansluitkabels, wat zorgt voor een gestructureerde en vlotte installatie.
Extra informatie
• Dit tarief geldt voor één ruimte.
• Voor meerdere ruimtes of een compleet huis kunt u een offerte aanvragen door ons plattegronden of aanvullende informatie te sturen.
• Korting bij volledige bestelling: Wanneer u het volledige legplan samen met de benodigde materialen en installatie bij ons bestelt, ontvangt u een exclusieve korting op zowel de materialen als de installatieservice.
Belangrijk:
Om uw legplan op maat te maken, hebben we specifieke informatie over uw ruimte(s) nodig. Na het plaatsen van uw bestelling nemen wij binnen één werkdag contact met u op om de details te bespreken. Zorg ervoor dat u een telefoonnummer achterlaat zodat wij u snel kunnen bereiken.
Heeft u vragen of wilt u een offerte ontvangen?
Voor vragen of om een offerte aan te vragen voor meerdere ruimtes, kunt u terecht op onze contact of neem contact met ons op via de volgende kanalen:
• Bel ons: 0614485953
• E-mail ons: Klik hier om direct een e-mail te sturen
Deel met je vrienden en familie!!!
